JASA GAMBAR KERJA-SHOP DRAWING HARGA BERSAHABAT
Kami berpengalaman kurang lebih 5 tahun dalam dunia drafter rumah tinggal dan disini kami menyediakan jasa pembuatan Gambar Kerja Bangunan. Dengan menggunakan software Autocad 2D & Sketch Up 3D dengan hasil dalam bentuk PDF Langkah PekerjaanUntuk SHOP DRAWING Profesional & Hasil Cepat 1. Klien Memberi Informasi terkait design yang ingin dibuat. 2. Klien Mensepakati tentang harga terkait pekerjaan tersebut. 3. Kami melakukan proses pengerjaan. 4. Kami melakukan update pekerjaan. 5. Jika klien merasa tidak puas kami menerima revisi master sebanyak 1x. 6. Jika design sudah selesai kami mengirimkan file melalui fastwork kepada klien. 7. Klien diharapkan melakukan konfirmasi kepada pihak fastwork dan diharapkan memberikan review terhadap kami. 8. Kami bekerja sepenuh hati terhadap Klien. Langkah Pekerjaan 1. Negosiasi harga dengan klien sesuai informasi singkat dari klien 2. Pemberian data dari klien 3. proses pembuatan shop drawing 4. revisi sepuasnya, selama tidak mengubah konsep 5. penyerahan file 6. selesai
Paket: 1 paket
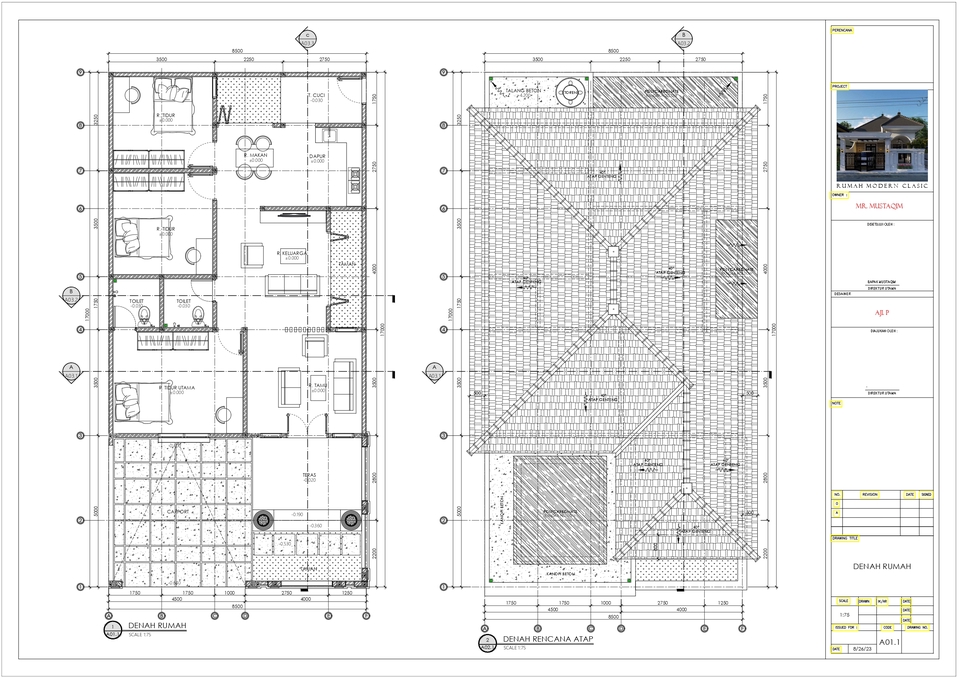
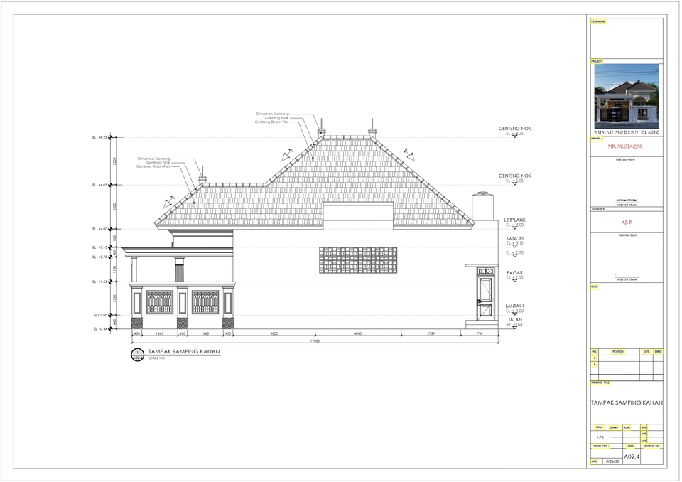
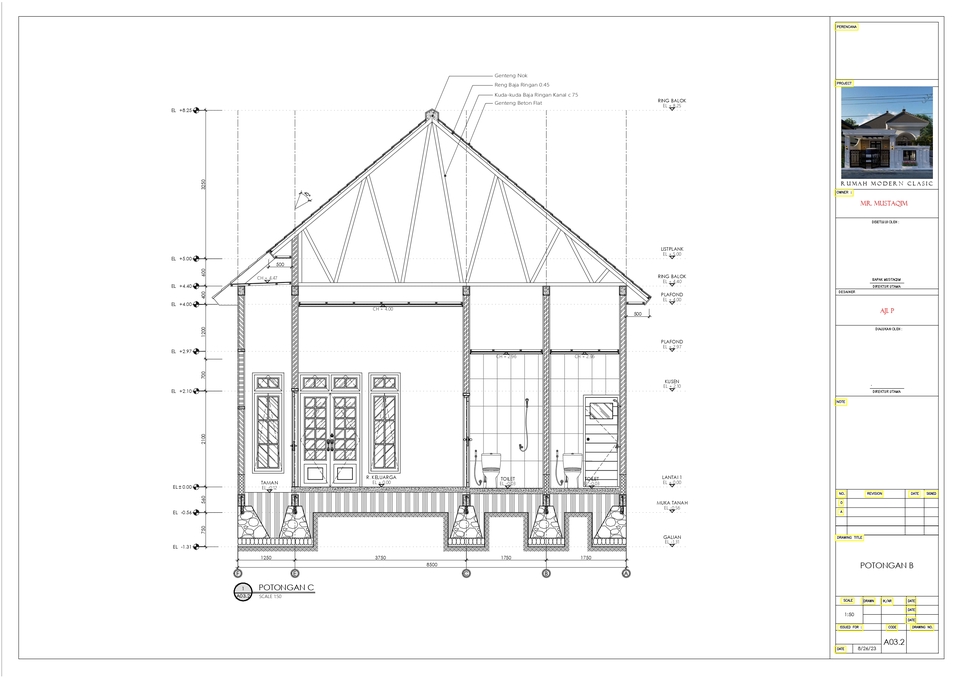
GAMBAR KERJA RUMAH
Rp100,0 rbMelayani Pembuatan Shop Drawing maupun denah saja. Dengan biaya Pembuatan Shop Drawing Rp. 30.000/m2 Pembuatan Denahnya saja Rp. 5.000/ m2 Harga RAB Rp. 10.000/ m2 harga diatas tidak paten, silahkan bisa dinego terlebih dahulu. Gambar yang didapat: - BISA CEK GAMBAR IKLAN, kurang lebih seperti itu yang akan di dapat - Harga tidak termasuk pembuatan RAB output : PDF/ untuk DWG ada biaya tambahan. durasi pengerjaan : tergantung luasan dan kerumitan design
Satu freelancer untuk semua kebutuhan
Layanan tambahan yang ditawarkan oleh freelancer yang Anda pilih
- Tidak perlu mencari freelancer baru
- Menghemat waktu
- Selesaikan semua pekerjaan Anda
Saya Aji Prayoga, usia saya sekarang menuju 25 tahun. Menurut saya usia dan gelar bukanlah tolak ukur untuk mengetahui kapasitas kepintaran, karakter dan etos kerja seseorang. Jadi saya pribadi lebih suka pertemanan atas dasar keilmuan/ pengetahuanya tentang dunia luar.
Saya Aji Prayoga, usia saya sekarang menuju 25 tahun. Menurut saya usia dan gelar bukanlah tolak ukur untuk mengetahui kapasitas kepintaran, karakter dan etos kerja seseorang. Jadi saya pribadi lebih suka pertemanan atas dasar keilmuan/ pengetahuanya tentang dunia luar.
Diskusi tentang Detail dan Ringkasan pekerjaan yang Anda inginkan dengan freelancer. Anda belum akan dikenakan biaya
Setuju untuk mempekerjakan dengan meminta penawaran dari freelancer. Periksa detail dan lakukan pembayaran untuk mulai bekerja.
Ketika freelancer menyerahkan pekerjaan akhir untuk menyelesaikan kontrak, pemberi kerja dapat memeriksanya terlebih dahulu. Pemberi kerja bisa memeriksa dan meminta untuk revisi atau menyetujui hasil tersebut sesuai kesepakatan.
Platform Fastwork adalah pihak perantara yang akan menyimpan uang pemberi kerja sebagai keamanan dan freelancer akan mendapatkan uang setelah pemberi kerja menyetujuinya.
















































