cad drawing (drafter furniture interior / arsitek)
Menerima jasa pembuatan gambar kerja furniture dengan harga yang bersahabat terutama bagi para designer interior atau workshop yang tidak punya cukup waktu untuk membuat gambar kerja. Keterangan lebih lanjut Sebelum pekerjaan dimulai antara freelancer dan buyer perlu memberikan detail pekerjaan yang diperlukan oleh buyer kepada freelancer yaitu : 1. Konsep (Dalam bentuk Konsep 3D atau Sketsa) 2. Kebutuhan Kop Gambar (Title Block) Selanjutnya freelancer bisa mulai mengerjakan paket pekerjaan yaitu Denah, Tampak dan Potongan Untuk file yang akan kami kirimkan kepada buyer adalah file dwg dan file pdf Langkah PekerjaanUntuk CAD Drawing / Jasa Gambar Furniture dengan 1hari pekerjaan (menyesuaikan pekerjaan) 1. Diskusi Detail Pekerjaan Dengan Buyer 2. Mulai Proses Pekerjaan 3. Hasil Pekerjaan Dikirimkan Untuk Direview 4. Revisi Hasil Review Dari Buyer 5. Pengiriman Kembali Hasil Revisi Gambar Langkah Pekerjaan 1. pekerjaan menyesuaikan permintaan 2. acc dan revisi 1 3. acc dan revisi 2 4. setalah acc dan selesai pengiriman file
Paket: 1 paket
gambar kerja
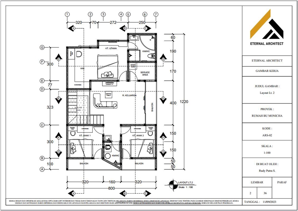
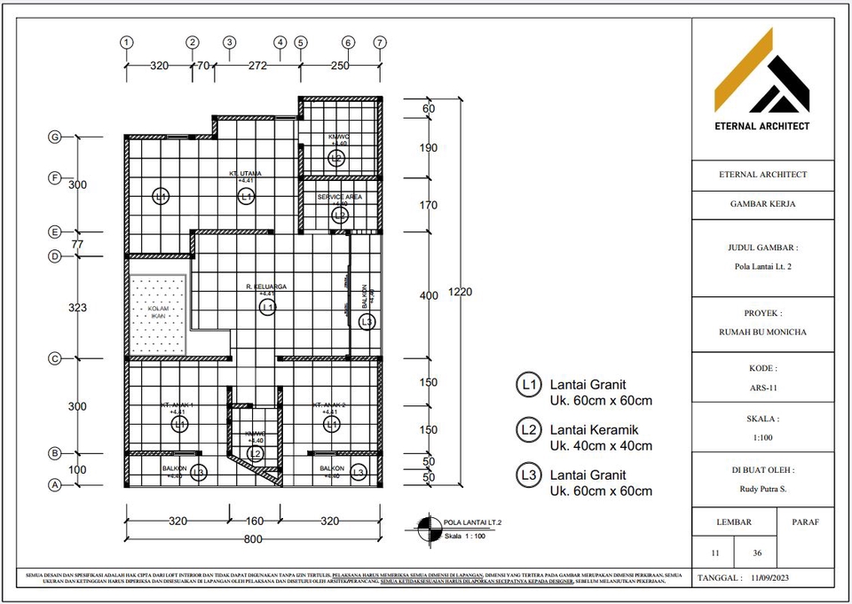
Rp100,0 rbgambar berupa shop drawing yang di gunakan untuk pekerjaan interior dan arsitek.
skill drafter, arsitek dan juga desainer interior. bekerja sebagai kontraktor interior dan build furniture. produksi funiture dan custom furniture, untuk rumah hotel mall tenan, dan berbagai macam ruang interior
skill drafter, arsitek dan juga desainer interior. bekerja sebagai kontraktor interior dan build furniture. produksi funiture dan custom furniture, untuk rumah hotel mall tenan, dan berbagai macam ruang interior
Diskusi tentang Detail dan Ringkasan pekerjaan yang Anda inginkan dengan freelancer. Anda belum akan dikenakan biaya
Setuju untuk mempekerjakan dengan meminta penawaran dari freelancer. Periksa detail dan lakukan pembayaran untuk mulai bekerja.
Ketika freelancer menyerahkan pekerjaan akhir untuk menyelesaikan kontrak, pemberi kerja dapat memeriksanya terlebih dahulu. Pemberi kerja bisa memeriksa dan meminta untuk revisi atau menyetujui hasil tersebut sesuai kesepakatan.
Platform Fastwork adalah pihak perantara yang akan menyimpan uang pemberi kerja sebagai keamanan dan freelancer akan mendapatkan uang setelah pemberi kerja menyetujuinya.









