Jasa Gambar dan Analisa Struktur Bangunan
Saya adalah engineer yang bergerak di bidang perencanaan struktur bangunan dengan pengalaman 2 tahun dalam proyek rumah tinggal, villa, restoran, hingga hotel. Saya menyediakan layanan perizinan bangunan khususnya laporan struktur untuk SLF dan PBG sesuai regulasi terbaru serta saya memiliki SKK bangunan gedung. Saya juga menyediakan layanan untuk menganalisa struktur eksisting. Output dari pekerjaan saya yaitu: 1. Gambar struktur (DED) 2. Laporan analisa struktur Alur kerja: 1. Klien mengirim gambar arsitektur 2. Kemudian dilakukan pemodelan struktur 4. Lalu membuat laporan analisa struktur dan DED 5. Mengirim data ke klient dalam bentuk pdf 6. Revisi dilakukan maksimal 5 kali
Paket: 1 paket
Paket Lengkap
Rp1,2 jtTerdiri dari laporan analisa struktur dan gambar struktur (DED). Harga 12.000/m2
Apa yang akan diterima pemberi kerja
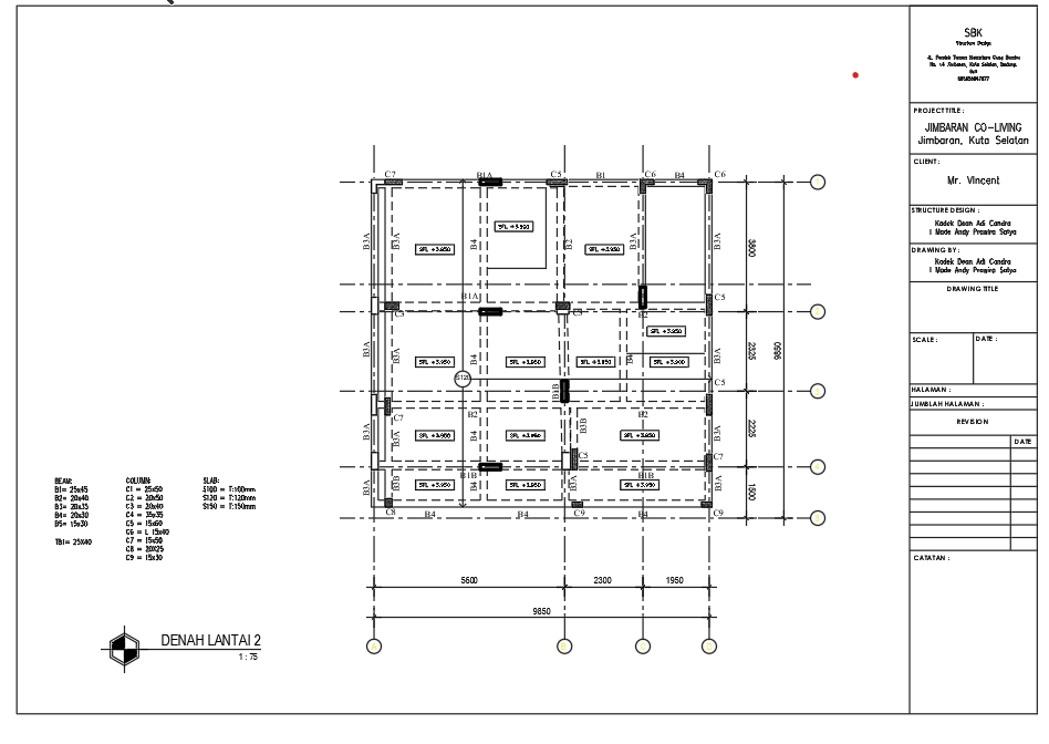
- • Gambar struktur bentuk pdf
- • Laporan struktur bentuk pdf
Saya Dean Adi, engineer dengan 2 tahun pengalaman dalam analisa struktur bangunan seperti rumah, villa, restoran, dan hotel. Saya menggunakan AutoCAD & SAP2000 untuk menghasilkan DED struktur dan laporan analisa. Proses kerja dimulai dari gambar arsitektur hingga laporan dan revisi sesuai kebutuhan klien.
Saya Dean Adi, engineer dengan 2 tahun pengalaman dalam analisa struktur bangunan seperti rumah, villa, restoran, dan hotel. Saya menggunakan AutoCAD & SAP2000 untuk menghasilkan DED struktur dan laporan analisa. Proses kerja dimulai dari gambar arsitektur hingga laporan dan revisi sesuai kebutuhan klien.
Diskusi tentang Detail dan Ringkasan pekerjaan yang Anda inginkan dengan freelancer. Anda belum akan dikenakan biaya
Setuju untuk mempekerjakan dengan meminta penawaran dari freelancer. Periksa detail dan lakukan pembayaran untuk mulai bekerja.
Ketika freelancer menyerahkan pekerjaan akhir untuk menyelesaikan kontrak, pemberi kerja dapat memeriksanya terlebih dahulu. Pemberi kerja bisa memeriksa dan meminta untuk revisi atau menyetujui hasil tersebut sesuai kesepakatan.
Platform Fastwork adalah pihak perantara yang akan menyimpan uang pemberi kerja sebagai keamanan dan freelancer akan mendapatkan uang setelah pemberi kerja menyetujuinya.





