GAMBAR MEP (DETAIL ENGINEERING DESAIN FOR MECHANICAL ELECTRICAL PLUMBING)
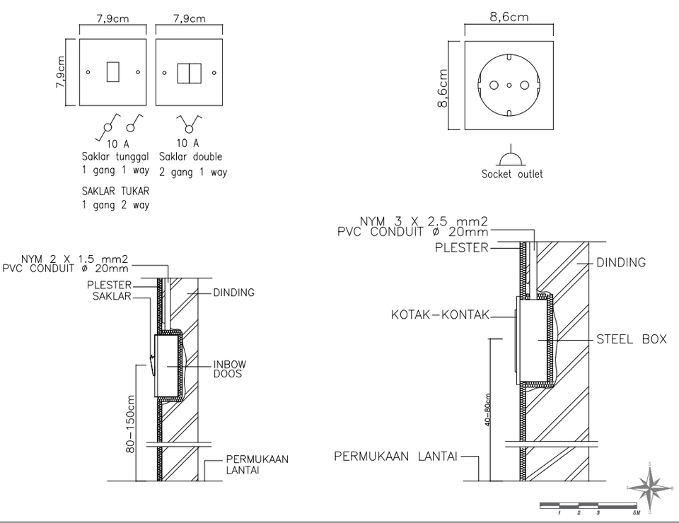
Saya menyediakan layanan pembuatan gambar Detail Engineering Design (DED) MEP untuk berbagai jenis proyek konstruksi, termasuk sistem Mechanical, Electrical, dan Plumbing. Layanan yang saya tawarkan meliputi: Mechanical: HVAC, sistem pemadam kebakaran, lift Electrical: kelistrikan, penerangan, genset Plumbing: air bersih, limbah, drainase electrical : CCTV, DATA& WIFI, SENSOR Hasil kerja berupa file DWG & PDF, lengkap dengan lay-out, detail, riser diagram, serta Bill of Quantity jika diperlukan. Kenapa Pilih Saya? Pengalaman >3 tahun di bidang MEP Hasil kerja presisi dan sesuai standar Revisi 2x tanpa biaya tambahan Hubungi saya untuk konsultasi lebih lanjut sebelum memesan! Langkah Pekerjaan 1. Client mengirimkan cad arsitektural atau sketchup arsitektural 2. ditunggu proses pengerjaan 3-7 hari tergantung kerumitan pekerjaan 3. Komunikasi melalui fastwork terkait pekerjaan MEP serta request khusus 4. kami mengirimkan seluruh file dalam bentuk drive yang bisa diakses pembeli
Paket: 3 paket
BASIC DED MECHANICAL ELECTRICAL PLUMBING
Rp100,0 rbMendapatkan file pdf untuk DED MEP yang meliputi semua gambar MEP tanpa hitungan dan wiring diagram.
STANDART DED MECHANICAL ELECTRICAL PLUMBING
Rp120,0 rbMendapatkan file pdf untuk DED MEP yang meliputi semua gambar MEP dengan hitungan dan wiring diagram.
ADVANCE DED MECHANICAL ELECTRICAL PLUMBING
Rp150,0 rbMendapatkan file pdf untuk DED MEP yang meliputi semua gambar MEP dengan hitungan dan wiring diagram. Serta mendapat laporan untuk penggunaan perizinan kota atau PBG
Jasa Pembuatan Gambar DED MEP Profesional Saya menyediakan layanan pembuatan gambar Detail Engineering Design (DED) MEP untuk berbagai jenis proyek konstruksi, termasuk sistem Mechanical, Electrical, dan Plumbing. RAB dan BOQ bisa kami kerjakan. Silahkan untuk berkonsultasi dengan kami
Jasa Pembuatan Gambar DED MEP Profesional Saya menyediakan layanan pembuatan gambar Detail Engineering Design (DED) MEP untuk berbagai jenis proyek konstruksi, termasuk sistem Mechanical, Electrical, dan Plumbing. RAB dan BOQ bisa kami kerjakan. Silahkan untuk berkonsultasi dengan kami
Diskusi tentang Detail dan Ringkasan pekerjaan yang Anda inginkan dengan freelancer. Anda belum akan dikenakan biaya
Setuju untuk mempekerjakan dengan meminta penawaran dari freelancer. Periksa detail dan lakukan pembayaran untuk mulai bekerja.
Ketika freelancer menyerahkan pekerjaan akhir untuk menyelesaikan kontrak, pemberi kerja dapat memeriksanya terlebih dahulu. Pemberi kerja bisa memeriksa dan meminta untuk revisi atau menyetujui hasil tersebut sesuai kesepakatan.
Platform Fastwork adalah pihak perantara yang akan menyimpan uang pemberi kerja sebagai keamanan dan freelancer akan mendapatkan uang setelah pemberi kerja menyetujuinya.














