Pembuatan Gambar Kerja Detail untuk Konstruksi dengan AutoCAD
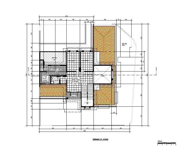
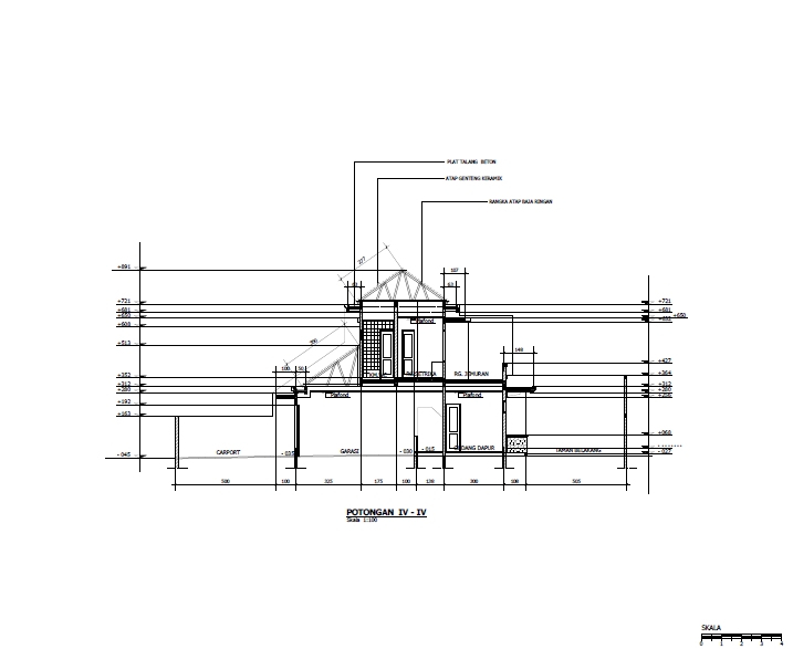
Saya menawarkan jasa pembuatan gambar kerja detail untuk proyek konstruksi menggunakan AutoCAD, yang meliputi denah lantai, tampak, potongan, serta detail teknis lainnya. Layanan ini membantu mempermudah pelaksanaan proyek konstruksi dengan gambar yang akurat dan sesuai standar industri. Layanan yang Saya Tawarkan: Gambar kerja arsitektur (denah, tampak, potongan) Detail konstruksi (dinding, lantai, atap, fondasi) Desain gambar struktur beton, baja, dan elemen lainnya Pemetaan dan pengukuran lokasi Pengaturan skala dan dimensi yang tepat Keunggulan: Akurasi tinggi dengan penggunaan AutoCAD terbaru Kesesuaian dengan standar konstruksi dan persyaratan lokal Revisi hingga puas untuk memastikan gambar sesuai kebutuhan Dengan AutoCAD, gambar kerja saya mudah dipahami oleh semua pihak terkait, memastikan proyek berjalan lancar dan efisien. Hubungi saya untuk mendapatkan gambar kerja detail berkualitas untuk proyek konstruksi Anda! Langkah Pekerjaan 1. Konsultasi Awal 2. Pengumpulan Dokumen 3. Pembuatan Gambar IMB 4. Pengiriman Gambar Sementara 5. Revisi (Jika Diperlukan) 6. Pengiriman Gambar Final 7. Penutupan Proyek
Paket: 1 paket
Paket Harga Layanan Pembuatan Gambar IMB
Rp200,0 rbDapatkan gambar IMB profesional untuk bangunan sederhana, termasuk denah lantai, tampak, dan potongan, sesuai dengan standar peraturan daerah setempat. Format file AutoCAD (DWG) dan PDF siap digunakan untuk pengajuan IMB. Proses cepat, hanya 2-3 hari kerja! Revisi kecil gratis untuk memastikan gambar sesuai kebutuhan Anda. Harga terjangkau, kualitas terjamin. Hubungi sekarang untuk mulai!
I am a freelancer with experience in house design, building projects, toll roads, and bridges. Proficient in AutoCAD, Civil 3D, REVIT, SketchUp, SolidWorks, and Global Mapper. Skilled in structural calculations using SAP 2000, ETABS, and Microsoft Project. Ambitious, responsible, and focused on delivering innovative, client-driven solutions with a strong commitment to quality and integrity.
I am a freelancer with experience in house design, building projects, toll roads, and bridges. Proficient in AutoCAD, Civil 3D, REVIT, SketchUp, SolidWorks, and Global Mapper. Skilled in structural calculations using SAP 2000, ETABS, and Microsoft Project. Ambitious, responsible, and focused on delivering innovative, client-driven solutions with a strong commitment to quality and integrity.
Diskusi tentang Detail dan Ringkasan pekerjaan yang Anda inginkan dengan freelancer. Anda belum akan dikenakan biaya
Setuju untuk mempekerjakan dengan meminta penawaran dari freelancer. Periksa detail dan lakukan pembayaran untuk mulai bekerja.
Ketika freelancer menyerahkan pekerjaan akhir untuk menyelesaikan kontrak, pemberi kerja dapat memeriksanya terlebih dahulu. Pemberi kerja bisa memeriksa dan meminta untuk revisi atau menyetujui hasil tersebut sesuai kesepakatan.
Platform Fastwork adalah pihak perantara yang akan menyimpan uang pemberi kerja sebagai keamanan dan freelancer akan mendapatkan uang setelah pemberi kerja menyetujuinya.











