Pembuatan Gambar IMB dan Gambar Kerja
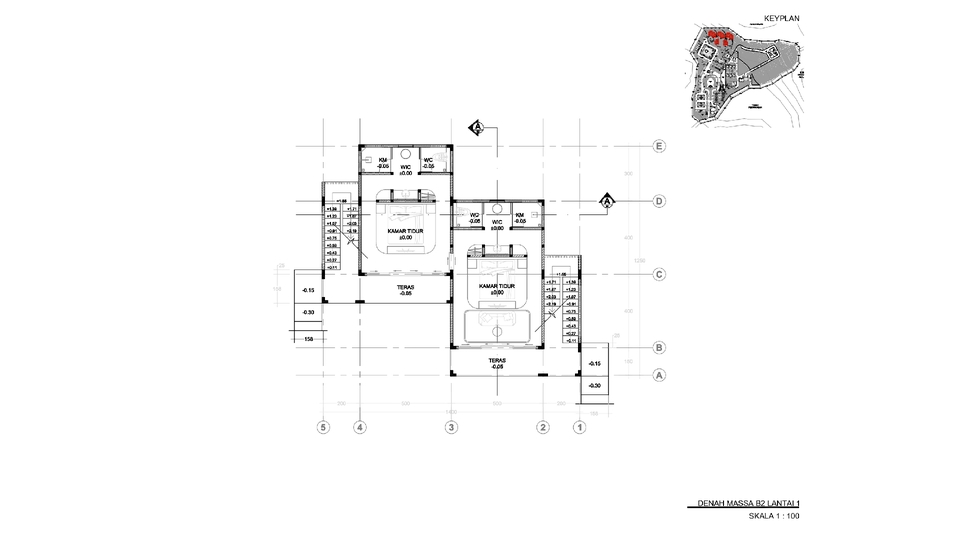
Terima kasih sudah mengunjungi Iklan Pekerjaan saya. Pekerjaan ini merupakan gambar untuk digunakan untuk mengajukan Ijin Mendirikan Bangunan (IMB) atau sebagai acuan kerja pada saat pembangunan. Gambar yang akan didapatkan terdiri dari : + Denah + Gambar Potongan + Gambar Tampak (Depan, Kanan, Kiri, Belakang, Atas) + Gambar - Gambar Rencana + Gambar - Gambar Detail Jika ada yang ingin ditanyakan, jangan ragu untuk mengirimkan saya pesan. Pesan yang masuk akan saya usahakan secepat mungkin dibalas. Terima kasih Langkah Pekerjaan 1. Klien memberikan brief pekerjaan (Kebutuhan dan Informasi Ukuran Lahan/Bangunan) yang diinginkan berupa sketsa / gambar contoh 2. Diskusi mengenai item gambar yang akan dikerjakan serta Klien mengajukan atau nego harga pekerjaan, Jika semua sudah "Fix" maka pekerjaan gambar akan dimulai 3. Pengirimin Draft gambar yang sudah dikerjakan 4. Jika terdapat kekeliruan atau perubahan dalam proses penggambaran maka akan dilakukan revisi 5. Pengirimin Draft gambar yang sudah di revisi 6. Jika masih terdapat Revisi maka akan kembali ke Langkah 4 (Terdapat 3x kesempatan untuk revisi skala kecil dan 2x untuk revisi skala besar) 7. Pengiriman Hasil Gambar Fix kepada Klien
Paket: 3 paket
Paket IMB Reguler
Rp150,0 rbGambar yang akan didapatkan : - Denah - Gambar Potongan (2 Potongan) - Gambar Tampak (Depan, Kanan, Kiri, Belakang, Atas) - Gambar Rencana Pondasi dan Sloof, Rencana Kolom, Rencana Balok, Rencana Atap, Rencana Instalasi Air Bersih dan Air Kotor, Rencana Instalasi Listrik, Rencana Pola Plafond, Rencana Titik Lampu, Rencana Pola Lantai, Rencana Pintu dan Jendela - Gambar Detail Pintu dan Jendela, Detail Pondasi Semua gambar berbentuk PDF Harga mulai 10.000/m2 (Min 15 m2)
Paket IMB Premium
Rp225,0 rbGambar yang akan didapatkan : - Denah - Gambar Potongan (2 Potongan) - Gambar Tampak (Depan, Kanan, Kiri, Belakang, Atas) - Gambar Rencana Pondasi dan Sloof, Rencana Kolom, Rencana Balok, Rencana Atap, Rencana Instalasi Air Bersih dan Air Kotor, Rencana Instalasi Listrik, Rencana Pola Plafond, Rencana Titik Lampu, Rencana Pola Lantai, Rencana Pintu dan Jendela - Gambar Detail Pintu dan Jendela, Detail Pondasi Semua gambar berbentuk PDF dan File CAD Harga mulai 15.000/m2 (Min 15 m2)
Paket Shopdrawing
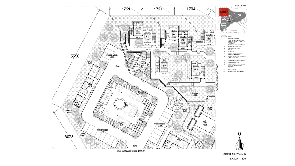
Rp300,0 rbGambar yang akan didapatkan : - Siteplan - Denah - Gambar Potongan (2-4 Potongan) - Gambar Tampak (Depan, Kanan, Kiri, Belakang, Atas) - Gambar Rencana Pondasi dan Sloof, Kolom, Balok, Rencana Atap, Instalasi Air Bersih dan Air Kotor, Instalasi Listrik, Pola Plafond, Titik Lampu, Pola Lantai, Pintu dan Jendela - Gambar Detail Pintu dan Jendela, Pondasi, Tangga (Jika ada), Kamar Mandi (Jika diperlukan), Pembesian Semua gambar berbentuk PDF dan File CAD Harga mulai 20.000/m2 (Min 15 m2)
Saya memiliki pengalaman sebagai Drafter di Kontraktor selama 1 Tahun 3 Bulan, serta sebagai Drafter Freelance sejak 2017.
Saya memiliki pengalaman sebagai Drafter di Kontraktor selama 1 Tahun 3 Bulan, serta sebagai Drafter Freelance sejak 2017.
Diskusi tentang Detail dan Ringkasan pekerjaan yang Anda inginkan dengan freelancer. Anda belum akan dikenakan biaya
Setuju untuk mempekerjakan dengan meminta penawaran dari freelancer. Periksa detail dan lakukan pembayaran untuk mulai bekerja.
Ketika freelancer menyerahkan pekerjaan akhir untuk menyelesaikan kontrak, pemberi kerja dapat memeriksanya terlebih dahulu. Pemberi kerja bisa memeriksa dan meminta untuk revisi atau menyetujui hasil tersebut sesuai kesepakatan.
Platform Fastwork adalah pihak perantara yang akan menyimpan uang pemberi kerja sebagai keamanan dan freelancer akan mendapatkan uang setelah pemberi kerja menyetujuinya.















