Jasa desain 2d konstruksi
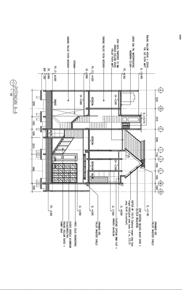
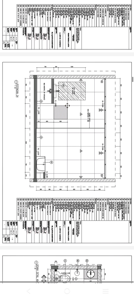
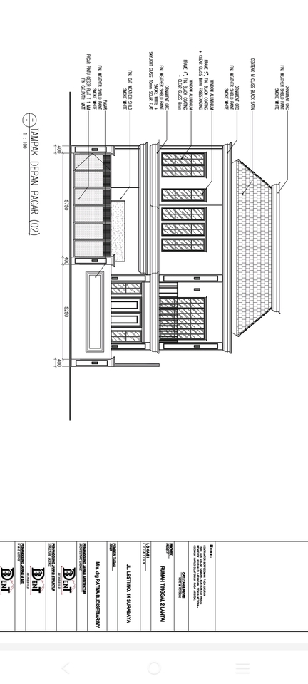
Gambar kerja 2d potongan, tampak, detail dan RAB dan interior bangunan, untuk gambar IMB perijinan yang merupakan komponen penting untuk hasil dari desain anda Untuk harga/ m2 paket 1 < 100m2 harga 25.000 Paket 2 > 100m2 harga 20.000 Langkah Pekerjaan 1. Tentukan ukuran yang anda miliki, diskusi tipe rumah ( modern, classic, japan view, industrial, scandinavian) 2. Ruang yang anda butuhkan 3. Desain awal denah hanya sketch 4. Jika setuju bisa lanjut proses gambar 5. Untuk RAB penentuan bahan material seperti genteng, keramik, plafon, cat nanti dibuatkan forn tinggal mengisi 6. Selesai
Paket: 2 paket
Paket ukuran 72m2
Rp200,0 rbGambar Denah, tampak, Potongan, detail, RAB
Paket 144m2
Rp200,0 rbGambar denah, tampak potongan, detail, RAB
Desain 2d, 3d RAB, gambar kerja berdasarkan BIM lebih efisien dan efektif. Serta memudahkan para klien mengeerti tentang desain rumah impian
Desain 2d, 3d RAB, gambar kerja berdasarkan BIM lebih efisien dan efektif. Serta memudahkan para klien mengeerti tentang desain rumah impian
Diskusi tentang Detail dan Ringkasan pekerjaan yang Anda inginkan dengan freelancer. Anda belum akan dikenakan biaya
Setuju untuk mempekerjakan dengan meminta penawaran dari freelancer. Periksa detail dan lakukan pembayaran untuk mulai bekerja.
Ketika freelancer menyerahkan pekerjaan akhir untuk menyelesaikan kontrak, pemberi kerja dapat memeriksanya terlebih dahulu. Pemberi kerja bisa memeriksa dan meminta untuk revisi atau menyetujui hasil tersebut sesuai kesepakatan.
Platform Fastwork adalah pihak perantara yang akan menyimpan uang pemberi kerja sebagai keamanan dan freelancer akan mendapatkan uang setelah pemberi kerja menyetujuinya.































