Jasa Pembuatan PBG (Persetujuan Bangunan Gedung)/ IMB (Ijin Mendirikan Bangunan) dan SLF
Butuh PBG dan SLF untuk proyek bangunan Anda? Kami adalah solusi terpercaya Anda. Kami menawarkan layanan konsultasi, pengurusan dokumen, dan pengajuan perizinan yang lengkap. Dengan pengalaman kami, kami akan memastikan proses perizinan Anda berjalan lancar dan sesuai dengan regulasi yang berlaku. Langkah Pekerjaan 1. Penyampaian DATA AWAL dan konsultasi terkait spesifikasi desain 2. Tahap pemesanan dan kontrak biaya jasa gambar dan desain bangunan 3. Tahap Pengerjaan 4. Revisi gambar / desain jika diperlukan hingga desain fix 5. Jika sudah deal dan Gambar/desain sudah disetujui, maka Hasil Desain akan di kirim ke klien.
Paket: 2 paket
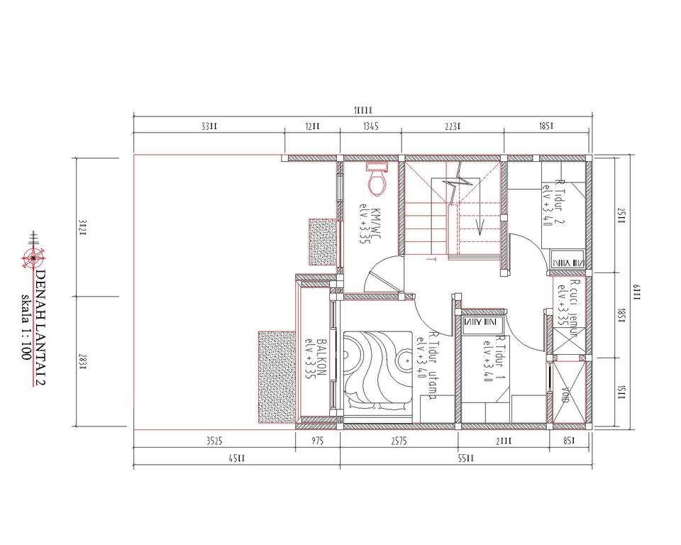
Gambar Kerja 2D
Rp200,0 rbPaket 2D Gambar Kerja Revisi Unlimited Output : A. Arsitektur 1. Denah 2. Tampak Depan & Samping 3. Potongan AA & BB 4. Denah Pola Lantai 5. Rencana & Detail Kusen 6. Rencana & Detail Plafond B. Struktur 1. Rencana & Detail Pondasi Batu Kali 2. Rencana & Detail Footplat 3. Rencana & Detail Sloof, Balok, Kolom, Balok Latei 4. Rencana & Detail Dak Lantai 5. Rencana & Detail Tangga C. MEP 1. Instalasi Listrik 2. Instalasi Air Bersih & Kotor 3. Sanitasi Air Hujan 4. Instalasi AC
Gambar IMB (Ijin Mendirikan Bangunan) atau PBG (Persetujuan Bangunan Gedung) dan SLF (Sertifikat Laik Fungsi)
Rp200,0 rbPaket Gambar IMB/ PBG/ SLF Revisi Unlimited Output : 1. Siteplan 2. Denah 3. Tampak Depan 4. Tampak Samping 5. Potongan AA 6. Potongan BB 7. Rencana Atap 8. Sumur Resapan 9. Tabel Perhitungan 10. IPAL Note : Gambar bisa menyesuaikan IRK / KRK jika sudah muncul
Bingung mau ngurus PBG atau SLF? Atau nyari buat desain rumah atau hanya sekedar gambar DED? Mungkin lagi nyari yang bisa hitung struktur? Semua ada disini, silahkan dikonsultasikan. Jangan ragu
Bingung mau ngurus PBG atau SLF? Atau nyari buat desain rumah atau hanya sekedar gambar DED? Mungkin lagi nyari yang bisa hitung struktur? Semua ada disini, silahkan dikonsultasikan. Jangan ragu
Diskusi tentang Detail dan Ringkasan pekerjaan yang Anda inginkan dengan freelancer. Anda belum akan dikenakan biaya
Setuju untuk mempekerjakan dengan meminta penawaran dari freelancer. Periksa detail dan lakukan pembayaran untuk mulai bekerja.
Ketika freelancer menyerahkan pekerjaan akhir untuk menyelesaikan kontrak, pemberi kerja dapat memeriksanya terlebih dahulu. Pemberi kerja bisa memeriksa dan meminta untuk revisi atau menyetujui hasil tersebut sesuai kesepakatan.
Platform Fastwork adalah pihak perantara yang akan menyimpan uang pemberi kerja sebagai keamanan dan freelancer akan mendapatkan uang setelah pemberi kerja menyetujuinya.



