Jasa Gambar Instalasi MEP
Saya seorang engineer MEP yang telah mempunyai pengalaman lebih dari 10 tahun. Spesialisasi saya adalah mendesain instalasi MEP untuk rumah tinggal, Apartemen, dan bangunan lainnya. Meliputi : Instalasi Elektrikal, Elektronik, HVAC, Plumbing & Pemadam kebakaran Langkah Pekerjaan 1. Terima data dari client berupa Denah Arsitektur lengkap dengan fungsi ruangan 2. Pembuatan gambar pradesign dan konsultasi Jalur Instalasi
Paket: 1 paket
Paket Standar
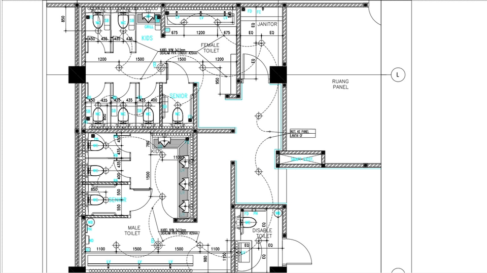
Rp200,0 rb1. Gambar instalasi penerangan dan stop kontak 2. Gambar instalasi sistem air bersih, air limbah, air kotor dan air hujan 3. Gambar instalasi AC 4. Gambar instalasi Pemadam Kebarakan 6. Gambar instalasi CCTV
Saya seorang engineer MEP yang telah terlibat dalam proyek selama lebih dari 10 tahun. Saya terbiasa membuat gambar desain MEP, gambar kerja MEP. Saya mahir Autocad. Instalasi MEP ini meliputi: Instalasi plumbing, listrik, elektronik, HVAC, & Pemadam Kebakaran
Saya seorang engineer MEP yang telah terlibat dalam proyek selama lebih dari 10 tahun. Saya terbiasa membuat gambar desain MEP, gambar kerja MEP. Saya mahir Autocad. Instalasi MEP ini meliputi: Instalasi plumbing, listrik, elektronik, HVAC, & Pemadam Kebakaran
Diskusi tentang Detail dan Ringkasan pekerjaan yang Anda inginkan dengan freelancer. Anda belum akan dikenakan biaya
Setuju untuk mempekerjakan dengan meminta penawaran dari freelancer. Periksa detail dan lakukan pembayaran untuk mulai bekerja.
Ketika freelancer menyerahkan pekerjaan akhir untuk menyelesaikan kontrak, pemberi kerja dapat memeriksanya terlebih dahulu. Pemberi kerja bisa memeriksa dan meminta untuk revisi atau menyetujui hasil tersebut sesuai kesepakatan.
Platform Fastwork adalah pihak perantara yang akan menyimpan uang pemberi kerja sebagai keamanan dan freelancer akan mendapatkan uang setelah pemberi kerja menyetujuinya.






