
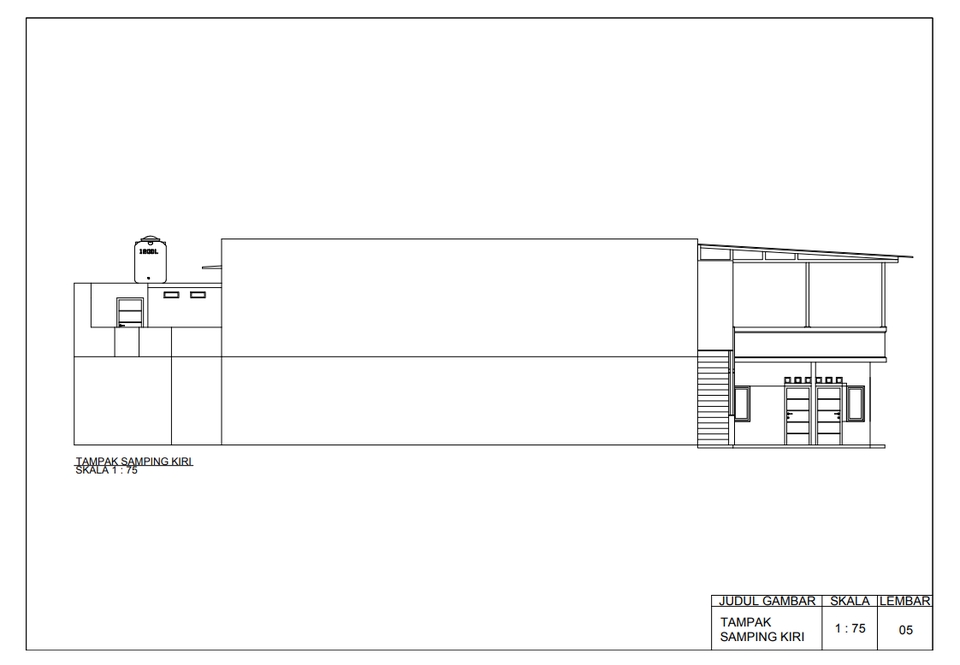
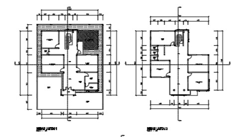
GAMBAR KERJA KONTRUKSI
halo saya fachmi spesialisasi saya di bidang arsitek dan teknik sipil. Saya menguasai program skectchup, autocad, sap2000, etab dan rendering dengan sangat baik. Saya berpengalaman dalam mendesain rumah, kantor, sekolah, denah, dan perhitungannya. Keterangan lebih lanjut mendesain sebuah bangunan dengan perhitungan secara tepat seprti. perhitungan struktur baja besi,RAB dll mendesain denah, rendering 3d baik interior dan eksterior Saya menguasai program skectchup, autocad, sap2000, etab dan rendering dengan sangat baik. Saya berpengalaman dalam mendesain rumah, kantor, sekolah, denah, dan perhitungannya. Langkah Pekerjaan 1. Sebutkan pekerjaan yang dibutuhkan (desain arsitekur/Interior/CAD Drawing) 2. sebutkan produk pekerjaan apa yang anda butuhkan 3. Jelaskan detail-detail seperti gaya desain dimensi dll 4. Sertakan waktu deadline yang ingin anda capai
Paket: 3 paket
basic
Rp100,0 rbfile desain dalam bentuk png,jpg,pdf dan lainya. dengan dimensi 0-50m2
normal
Rp140,0 rbfile desain dalam bentuk png,jpg,pdf dan lainya. dengan dimensi 50-100m2
expert
Rp210,0 rbfile desain dalam bentuk png,jpg,pdf dan lainya. dengan dimensi 100-150m2
Satu freelancer untuk semua kebutuhan
Layanan tambahan yang ditawarkan oleh freelancer yang Anda pilih
- Tidak perlu mencari freelancer baru
- Menghemat waktu
- Selesaikan semua pekerjaan Anda
Saya, Fachmi, profesional di bidang arsitektur & teknik sipil. Berpengalaman dalam desain rumah, kantor, sekolah, serta perhitungan struktur. Menguasai SketchUp, AutoCAD, IdeaStatica, ETABS & rendering. Siap mewujudkan bangunan fungsional, estetis, dan kuat dengan solusi desain yang presisi & efisien.
Saya, Fachmi, profesional di bidang arsitektur & teknik sipil. Berpengalaman dalam desain rumah, kantor, sekolah, serta perhitungan struktur. Menguasai SketchUp, AutoCAD, IdeaStatica, ETABS & rendering. Siap mewujudkan bangunan fungsional, estetis, dan kuat dengan solusi desain yang presisi & efisien.
Pak Fahmi sangat ahli di bidang ini, sabar ramah dengan eespon yabg cepat, dan pekerjaan yang dihasilkan juga sangat memuaskan bahkan dilengkapi analisis perhitungan kekuatan bangunan dan gambar Visual 3D. Terima kasih Pak Fahmi, semoga proyek saya berjalan lancar🙏
lumayan..
Konsisten, masih cepet replynya dan hasil detil. Sesuai dgn permintaan dan revisi yang diberikan. Dikasih bonus gambar interiornya juga. Terima kasih banyak!
Kecepatan yang diberikan Freelancer sangat memuaskan, detail akurat seperti apa yg di inginkan
Sangat kooperatif, fast respon, dan hasil kerjanya cepat dan jauh di atas ekspektasi. Recommended & 10/10 would work again with him!
Diskusi tentang Detail dan Ringkasan pekerjaan yang Anda inginkan dengan freelancer. Anda belum akan dikenakan biaya
Setuju untuk mempekerjakan dengan meminta penawaran dari freelancer. Periksa detail dan lakukan pembayaran untuk mulai bekerja.
Ketika freelancer menyerahkan pekerjaan akhir untuk menyelesaikan kontrak, pemberi kerja dapat memeriksanya terlebih dahulu. Pemberi kerja bisa memeriksa dan meminta untuk revisi atau menyetujui hasil tersebut sesuai kesepakatan.
Platform Fastwork adalah pihak perantara yang akan menyimpan uang pemberi kerja sebagai keamanan dan freelancer akan mendapatkan uang setelah pemberi kerja menyetujuinya.



























![Jasa Gambar Kontruksi Bangunan [Terjangkau]](https://storage.googleapis.com/fastwork-static/9a2f1d49-714d-4382-8c69-9a1da0eb2621.jpg)



